
89030 Condofuri Marina RC, Italy
Residential - Sleaping Area
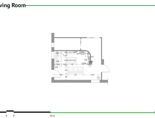
Briefing
Buongiorno a tutti!
Ho acquistato un pò di anni fa gli arredi che vedete nelle foto,sono alla ricerca di nuove proposte in modo da riorganizzare al meglio il mio spazio.Mi piacerebbe completare la parete del salone con dei libri da collezione e altri suppellettili ,attenendomi ai colori attuali,vorrei un ambiente con colori caldi .
Di seguito vi fornisco le misure di alcuni arredi che vorrei riaddattare nel mio salone :
divano 2,20 m
II divano 1,65 m
vetrina 1,92
tavolino 1,22 x 0,82
Uno degli aspetti che mi ha creato più difficoltà è capire come arredare e sfruttare la parete rotonda,mi piacerebbe avere da parte vostra dei suggerimenti per questa parete.
ENG
Hi everyone!
I bought the furniture you see in the photos a few years ago, I'm looking for new proposals in order to better reorganize my space.I would like to complete the living room wall with collectible books and other furnishings, sticking to the current colors , I would like an environment with warm colors.
Below I give you the measurements of some furnishings that I would like to readjust in my living room:
sofa 2.20 m
The sofa 1.65 m
showcase 1.92
coffee table 1.22 x 0.82
One of the aspects that made me more difficult is understanding how to furnish and use the round wall, I would like to have some suggestions for this wall from you.
SPA
¡Buenos días a todos!
Compré los muebles que verán en las fotos hace unos años, estoy buscando nuevas propuestas para poder reorganizar mejor mi espacio, me gustaría completar la pared del salón con libros coleccionables y otros muebles, apegándome a los colores actuales , Me gustaría un ambiente con colores cálidos.
A continuación les doy las medidas de algunos muebles que me gustaría reajustar en mi salón:
sofá 2,20 m
El sofá 1,65 m
escaparate 1,92
mesa de centro 1,22 x 0,82
Uno de los aspectos que me hizo más difícil es entender cómo amueblar y usar la pared redonda, me gustaría tener algunas sugerencias para esta pared.