
Naples, Metropolitan City of Naples, Italy
Residential - Apartment
Briefing
Dear Architects,
We are excited to participate in this contest to redesign our apartment and make it more modern and functional. Here are our main requirements:
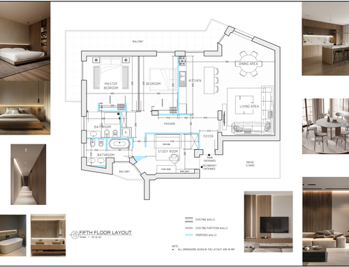
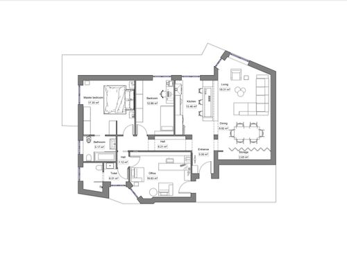
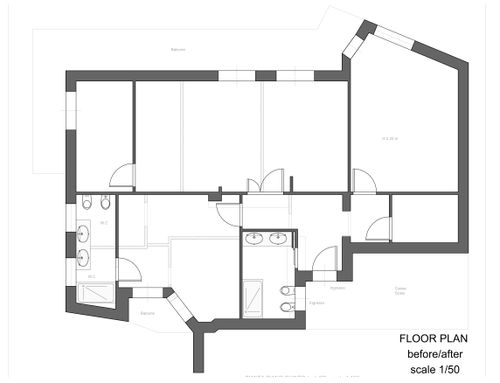
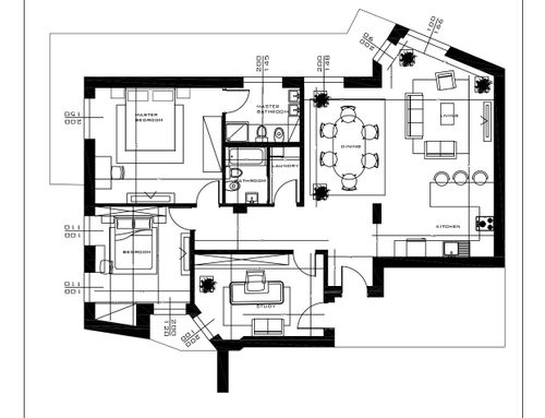
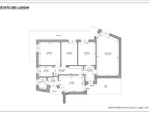
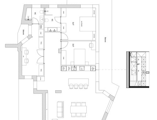
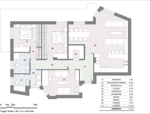
Open space: We want to relocate the kitchen (currently in a separate room near the second entrance) and merge it with the living room to create a bright, welcoming open-plan area.
Two bathrooms: One of the bathrooms should be an en-suite for the main bedroom.
Two bedrooms and a study: In addition to the main and second bedrooms, we need a study that could also serve as a versatile space.
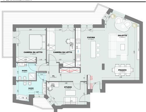
We’ve included a drawing among the images to give you an idea of our vision for the layout. We look forward to seeing your creative proposals.