
Cagliari, CA, Italia
Residential - Apartment
Briefing
ENG:
This is our new apartment, just purchased. Four of us will live here: two adults and two children aged 12 and 9. And maybe one day a dog!
The house we currently live in is very beautiful, but it is on two separate floors, so we don’t really enjoy the terrace or the full space of the upper floor.
We have been looking for a solution that allows us to enjoy the outdoor space while keeping a guest room and bathroom. We also want the possibility of dividing the apartment in the future for our two children.
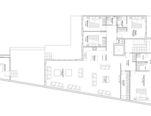
Now, about the apartment: it used to be an office, so at the moment it doesn’t have a kitchen, and it has a big flaw—two windowless bathrooms.
What we are looking for is a design that helps us understand:
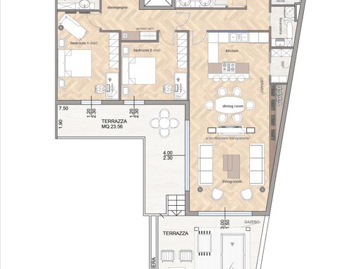
where it is best to place the kitchen (we like the idea of an island or T-shaped kitchen, and we also like concealed solutions);
which walls to remove, and how to deal with the slanted wall;
since we no longer have a cellar, we will need storage space;
how to create a ventilated bathroom;
how to furnish everything, especially the kitchen-living area (would a bio-fireplace fit well? and for separating spaces, is it better to use a sliding door, a transparent partition, an arch, or the island itself?). NB: the window of the room next to the terrace is low, starting about one meter from the floor, something to consider if placing furniture.
In the floor plan you can also see a separate room, a “bonus room.” Since we already have space for a beautiful living room and a relaxation area on the terrace, what could it become? A game room with a pool table… a creative workshop… a library… how could we make the most of it?
The style of the house is modern, with creative touches and some vintage accessories.
As for us, if the house is to reflect us, the children are passionate about basketball and soccer, which they currently even play in the living room.
We don’t have a TV, but we do have a projector.
We own a huge number of books and far too many shoes.
We are happy to answer any questions and can’t wait to see our new home through your eyes!
SPA:
Este es nuestro nuevo apartamento, recién comprado. Viviremos aquí en 4: dos adultos y dos niños de 12 y 9 años. ¡Y quizás algún día un perro!
La casa en la que vivimos actualmente es muy bonita, pero está dividida en dos plantas, por lo que no disfrutamos de la terraza ni de todos los metros cuadrados de la planta superior.
Hemos estado buscando una solución que nos permita aprovechar el espacio exterior y, al mismo tiempo, mantener un dormitorio y un baño para los huéspedes. Además, queremos la posibilidad de dividir el apartamento en el futuro para nuestros dos hijos.
Ahora, sobre el apartamento: era una oficina, así que de momento no tiene cocina, y tiene un gran defecto: dos baños sin ventanas.
Lo que buscamos es un proyecto que nos permita entender:
dónde es mejor ubicar la cocina (nos gusta la idea de una cocina con isla o en forma de T, y también nos atraen las soluciones ocultas);
qué paredes eliminar, y cómo resolver el muro inclinado;
como ya no tenemos sótano, necesitaremos espacio de almacenamiento;
cómo crear un baño ventilado;
cómo amueblar todo, en especial el área cocina–salón (¿quedaría bien una biochimenea? y para separar los espacios, ¿mejor una puerta corredera, un panel transparente, un arco o la propia isla?). Nota: la ventana de la habitación que da a la terraza es baja, empieza a un metro del suelo, algo a considerar si se quieren colocar muebles.
En el plano también se ve una habitación separada, una “bonus room”. Como ya tenemos espacio para un buen salón interior y un área de relax en la terraza, ¿qué podría ser? ¿Una sala de juegos con billar? ¿Un taller creativo? ¿Una biblioteca? ¿Cómo aprovecharla al máximo?
El estilo de la casa es moderno, con toques creativos y algunos accesorios vintage.
En cuanto a nosotros, si la casa debe reflejarnos, los niños son muy aficionados al baloncesto y al fútbol, que actualmente practican incluso en el salón.
No tenemos televisión, pero sí un proyector.
Tenemos muchísimos libros y demasiados zapatos.
Estamos disponibles para responder a cualquier duda y ¡no vemos la hora de visualizar nuestra nueva casa con vuestros ojos!
ITA:
Questo è il nostro nuovo appartamento, appena acquistato. Ci andremo ad abitare in 4, due adulti e due ragazzi di 12 e 9 anni. E forse un giorno un cane!
La casa in cui abitiamo ora è molto bella, ma è su due piani separati, e non ci godiamo la terrazza né tutti i metri quadri del piano superiore.
Abbiamo cercato una soluzione per godere dello spazio esterno e mantenere una camera e un bagno per gli ospiti. Abbiamo inoltre il desiderio di poter frazionare in futuro questo appartamento per i due figli.
Torniamo all'appartamento: è un ex ufficio, quindi al momento non ha una cucina e ha un grande difetto, ossia due bagni ciechi.
Quello che cerchiamo è un progetto che ci permetta di capire:
- dove sia meglio posizionare la cucina (ci piace l'idea di una cucina a isola o T, ci piacciono le soluzioni a scomparsa)
- quali pareti eliminare, e come eventualmente superare la parete obliqua.
- Prima avevamo una cantina, ora no, quindi ci servirà spazio contenitore.
- come ricavare un bagno areato (vorremmo 3 bagni, almeno uno areato e almeno due con doccia)
- come mantenere 4 camere da letto (1 per figlio, una matrimoniale, una per gli ospiti).
- come inserire una lavanderia.
- come arredare il tutto, in particolare l'area cucina - living (dove metterla? come ci starebbe un biocamino? e per separare gli spazi, meglio una porta scorrevole o trasparente, meglio un arco o meglio l'isola? ) nb: la finestra della stanza che confina con la terrazza è bassa, parte a circa un metro, da considerare nel caso in cui si volessero appoggiare mobili.
Nella planimetria si vede inoltre una stanza separata, una bonus room: avendo già lo spazio per un bel salone interno e uno spazio relax in terrazza, cosa potrebbe diventare? Una sala giochi con biliardo... Un laboratorio creativo... una biblioteca... come valorizzarla?
Lo stile della casa è moderno, con tocchi creativi e qualche accessorio vintage.
Quanto a noi, se la casa deve raccontarci, i ragazzi sono molto amanti del basket e del calcio, che attualmente praticano persino in salotto.
Non abbiamo una tv, ma il videoproiettore.
Abbiamo tantissimi libri e tantissime - troppe - scarpe.
Siamo disponibili per rispondere a ogni dubbio e domanda e non vediamo l'ora di visualizzare la nostra nuova casa vista con i vostri occhi!