
Rimini, Province of Rimini, Italy
Residential - Apartment
Briefing
ENG:
I am about to buy a 91 m2 apartment to completely renovate. I would like to share with you the key points and my needs to start thinking together about a coherent, functional and aesthetically elegant renovation project.
1. General layout and style
• The style I love is the French one, with an elegant and sober taste, not bright but warm and refined colors, boiserie on the walls and quality materials.
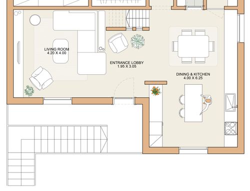
• The goal is to give visual and functional breadth to the living area, developing it horizontally with respect to the entrance: living room on the left and kitchen on the right, also evaluating a possible inversion of the spaces with respect to the current state, if useful to open up and make the environment fluid.
• I would like an orderly and scenographic distribution, where each architectural element has its own aesthetic coherence.
2. Living area
• As soon as you enter, I would like a welcoming and airy space, which opens onto a living area with:
• Sofa
• TV wall unit
• Dining table
• The kitchen should be on the opposite side to the living room (or inverted, if technically and visually functional).
• I would like a kitchen with a central island
• A door integrated into the kitchen furniture that leads to a hidden hallway where I can place:
• Small pantry
• Guest bathroom (also blind), with toilet and sink. A shower is not necessary.
3. Sleeping area
• It must be well separated from the living area, accessible from a hallway with visual and acoustic closure.
• In the sleeping area I would like:
• A master double bedroom, with:
• Private internal bathroom
• Walk-in closet
• A second bedroom (currently about 16.5 m2), from which to draw part of the surface to expand the kitchen/dining room.
• With the remaining square footage of the second bedroom, create a small study/office, even compact but functional.
4. Access to the attic
• In the sleeping area (or in part of the hallway) I would like to plan the insertion of an important, scenographic staircase, which leads to the attic that is not habitable but still to be enhanced.
• The highest point where this staircase can be inserted is between the current 4.08 m2 bathroom and the center of the hallway.
• Other possible positions are also considered (e.g. in the corner or to the side), as long as the staircase is clearly visible and contributes to the general aesthetic.
• The style of the staircase must reflect the elegance of the project, while being functional.
Thank you
ITA:
Sto per acquistare un appartamento di 91 mq da ristrutturare completamente. Vorrei condividere con te i punti chiave e le mie esigenze per iniziare a ragionare insieme su un progetto di ristrutturazione coerente, funzionale ed esteticamente elegante.
1. Impostazione generale e stile
• Lo stile che amo è quello francese, con un gusto elegante e sobrio, colori non accesi ma caldi e raffinati, boiserie sulle pareti e materiali di pregio.
• L’obiettivo è dare ampiezza visiva e funzionale alla zona giorno, sviluppandola orizzontalmente rispetto all’ingresso: soggiorno a sinistra e cucina a destra, anche valutando un eventuale inversione degli spazi rispetto allo stato attuale, se utile ad aprire e fluidificare l’ambiente.
• Mi piacerebbe una distribuzione ordinata e scenografica, dove ogni elemento architettonico ha una sua coerenza estetica.
2. Zona giorno
• Appena si entra, vorrei uno spazio accogliente e arioso, che si apra su un’area living con:
• Divano
• Parete attrezzata per TV
• Tavolo da pranzo
• La cucina dovrebbe essere sul lato opposto rispetto al soggiorno (o invertiti tra loro, se tecnicamente e visivamente funzionale).
• Vorrei una cucina con isola centrale
• Una porta integrata nell’arredo cucina che conduca a un disimpegno nascosto dove collocare:
• Piccola dispensa
• Bagno di servizio per gli ospiti (anche cieco), con WC e lavabo. Non è necessaria la doccia.
3. Zona notte
• Dovrà essere ben separata dalla zona giorno, accessibile da un disimpegno con chiusura visiva e acustica.
• Nella zona notte desidero:
• Una camera matrimoniale padronale, con:
• Bagno privato interno
• Cabina armadio
• Una seconda camera (attualmente di circa 16,5 mq), da cui attingere parte della superficie per ampliare la cucina/pranzo.
• Con la metratura residua della seconda camera, creare un piccolo studio/ufficio, anche compatto ma funzionale.
4. Accesso alla mansarda
• Nell’area notte (o in parte del disimpegno) desidero prevedere l’inserimento di una scala importante, scenografica, che conduca alla mansarda non abitabile ma comunque da valorizzare.
• Il punto più alto dove poter inserire questa scala si trova tra l’attuale bagno da 4,08 mq e il centro del disimpegno.
• Si valutano anche altre possibili posizioni (es. in angolo o a lato), purché la scala sia ben visibile e contribuisca all’estetica generale.
• Lo stile della scala dovrà rispecchiare l’eleganza del progetto, pur essendo funzionale.
Grazie
SPA:
Estoy a punto de comprar un piso de 91 m2 para reformar Ăntegramente. Me gustarĂa compartir con vosotros los puntos clave y mis necesidades para empezar a pensar juntos en un proyecto de reforma coherente, funcional y estĂ©ticamente elegante.
1. ConfiguraciĂłn general y estilo
• El estilo que me encanta es el francés, con un gusto elegante y sobrio, colores no brillantes sino cálidos y refinados, revestimientos de madera en las paredes y materiales de calidad.
• Se busca dar amplitud visual y funcional a la zona de estar, desarrollándola horizontalmente respecto a la entrada: salón a la izquierda y cocina a la derecha, valorando también una posible inversión de los espacios respecto al estado actual, si fuera útil para abrirse y hacer más fluido el ambiente.
• Me gustarĂa una distribuciĂłn ordenada y escenográfica, donde cada elemento arquitectĂłnico tenga su propia coherencia estĂ©tica.
2. Zona de estar
• Nada más entrar, me gustarĂa un espacio acogedor y aireado, que se abra a una sala de estar con:
• Sofá
• Mueble de pared para TV
• Mesa de comedor
• La cocina debe estar en el lado opuesto a la sala de estar (o invertida entre ellos, si es técnica y visualmente funcional).
• Me gustarĂa una cocina con isla central
• Una puerta integrada en el mobiliario de cocina que da paso a un pasillo oculto donde podrás colocar:
• Pequeña despensa
• Baño de cortesĂa (tambiĂ©n ciego), con inodoro y lavabo. No es necesario ducharse.
3. Zona de dormir
• Debe estar bien separado de la zona de estar, accesible desde un pasillo con cierre visual y acústico.
• En la zona de dormir me gustarĂa:
• Un dormitorio principal doble, con:
• Baño privado interno
• Vestidor
• Un segundo dormitorio (actualmente de 16,5 m2 aproximadamente), del que se puede aprovechar parte de la superficie para ampliar la cocina-comedor.
• Con el espacio restante del segundo dormitorio, crear un pequeño estudio/oficina, aún compacto pero funcional.
4. Acceso al ático
• En la zona de dormir (o en parte del pasillo) me gustarĂa planificar la inserciĂłn de una escalera importante y pintoresca, que conduce al ático que no es habitable pero aĂşn está por acondicionar.
• El punto más alto donde se puede insertar esta escalera es entre el baño actual de 4,08 m2 y el centro del pasillo.
• También se consideran otras posiciones posibles (por ejemplo en una esquina o en un lateral), siempre que la escalera sea claramente visible y contribuya a la estética general.
• El estilo de la escalera debe reflejar la elegancia del proyecto, a la vez que ser funcional.
Gracias