
72024 Oria, BR, Italy
Residential - House
Briefing
ENG:
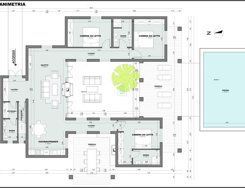
The initial building is an old ruin to be demolished. It is therefore possible to rebuild using the existing volume (480 m3) and place it in another place within the lot, also changing the shape. Considering a minimum internal height of 2.70 m (i.e. 3,000 m gross) approximately 160 gross sqm could be generated. I would like to have a 3-bedroom villa with a pool. A villa with a large open-space, open kitchen. I would like it with an internal courtyard connected to the pool area, large windows, light, but also privacy. Furthermore, I would like to have a covered terrace (pergola) to the West connected to the living area where you can have dinner with friends while the sun sets, with an outdoor kitchen, but a BBQ with the oven is also fine. I like the Mediterranean style, elegant, with a bit of modernity, but not a minimalist box.
Access to the house does not have to be directly in a living room/living space, but I would like an entrance and a side room where you can leave shoes, jackets, bags etc.
The house should be on a single level, but a second level can be considered.
I leave room for the creativity of the architects to create the other house areas (sleeping area, bathrooms etc).
The house should ideally be developed on a single level, but a second level can be considered. I would also like a basement area for a small tavern, utility rooms, laundry, etc.
ESP:
El edificio inicial es una antigua ruina a derribar. Por lo tanto, es posible reconstruir utilizando el volumen existente (480 m3) y ubicarlo en otro lugar dentro del lote, cambiando también la forma. Considerando una altura interior mínima de 2,70 m (es decir, 3.000 m brutos), se podrían generar aproximadamente 160 m2 brutos. Me gustaría tener una villa de 3 dormitorios con piscina. Una villa con un gran espacio abierto, cocina abierta. Me gustaría que tuviera un patio interno conectado con el área de la piscina, grandes ventanales, luz, pero también privacidad. Además, me gustaría tener una terraza cubierta (pérgola) al oeste conectada con la sala de estar donde poder cenar con amigos mientras se pone el sol, con una cocina al aire libre, pero una barbacoa con horno también está bien. Me gusta el estilo mediterráneo, elegante, con un poco de modernidad, pero no una caja minimalista.
El acceso a la casa no tiene que ser directamente en un salón/espacio habitable, pero me gustaría una entrada y una habitación lateral donde poder dejar zapatos, chaquetas, bolsos, etc.
La casa debe ser de un solo nivel, pero se puede considerar un segundo nivel.
Dejo espacio a la creatividad de los arquitectos para crear las otras zonas de la casa (zona de dormitorio, baños, etc.).
Lo ideal es que la casa se desarrolle en un solo nivel, pero se puede considerar un segundo nivel. También me gustaría un sótano para una pequeña taberna, cuartos de servicio, lavandería, etc.
ITA:
Il fabbricato di partenza è un vecchio rudere da demolire. E' possibile pertanto ricostruire utilizzando la volumetria esistente (480 mc) collocarla in un altro luogo all'interno del lotto, cambiando anche la sagoma. Considerando una altezza minima interna di 2.70 m (ovvero 3.oo m lordi) si potrebbero generare circa 160mq lordi.
Mi piacerebbe avere una villa da 3 camere da letto e piscina. Una villa con un ampio open-space, cucina aperta. Mi piacerebbe con una corte interna collegata alla zona piscina, ampie vetrate, luce,ma anche privacy. Inoltre mi piacerebbe avere una terrazza coperta (pergola) ad Ovest collegata alla zona living dove poter cenare con gli amici mentre tramonta il sole, con una cucina esterna, ma va bene anche in BBQ con forno. Mi piace lo stile mediterraneo, elegante, con un po' di modernità, ma non una scatola minimalista. L'accesso alla casa non deve avvenire direttamente in un soggiorno/ living space, ma vorrei un ingresso ed una stanza laterale dove lasciare scarpe, giacche, borse etc
La casa dovrebbe svilupparsi su un unico livello, ma un secondo livello si può valutare. Lascio spazio alla creatività degli architetti di creare gli altri ambienti. Mi piacerebbe anche una zona seminterrata per una tavernetta, vani tecnici, lavanderia etc. che non fanno volume.