
Naples, Metropolitan City of Naples, Italy
Residential - Apartment
Briefing
DESCRIZIONE IMMOBILE
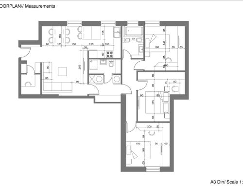
L’appartamento di 90 mq é abitato da 4 persone, L’immobile è situato a Napoli e si trova nello stato illustrato in planimetria, come da foto allegate.
Di seguito riporto le nostre necessità:
Ricavare una terza camera da letto anche con eventuale soluzione cieca ( si accettano anche proposte alternative anche se la nostra preferenza é quella di avere 3 camere indipendenti)
Ricavare un ulteriore bagno anche cieco( proponete voi la soluzione migliore)
Ricavare un piccolo ripostiglio dove sistemare anche asciugature e lavatrice slim( Es. eventualmente sfruttando anche l’attuale armadio a muro misura 2200 x 600 presente sulla parete del corridoio) proponente voi la soluzione migliore.
Una zona Open space(cucina soggiorno) quanto più luminosa possibile, si rende necessario utilizzo del balcone in questo ambiente.
Note:
Allo stato attuale gli scarichi sono tutti concentrati dove è l’attuale bagno e non c’è ne sono altri sfruttabili( riporto questa info perché può essere utile come informazione per il secondo bagno da realizzare così come per eventuale scarico per cucina e lavatrice)
Possibilità di abbattere se necessario, tutte le pareti attualmente presenti per apportare le opportune modiche per realizzare quanto richiesto.
Dettagli immobile:
L’appartamento ha 2 esposizioni:
1. 1 balcone a sud/ Est con affaccio aperto su altre palazzine distanti (attualmente c’è la camera da letto patronale)
2. 2 finestre e 2 balconi con affaccio a Nord/ ovest, con affaccio verso un altra palazzina attualmente ci sono salone, cucina,bagno e cameretta.
Tutti i muri sono tramezzi, ci sono 2 pilastri sulla parete confinante con appartamento del vicino, uno nell’ attuale soggiorno e l’ altro vicino all’armadio a muro. Il riscaldamento è autonomo. L’altezza del soffitto è 3,10
RICHIESTA GENERALE
L’esigenza è quella di ridistribuire gli spazi cercando di eliminare/ridurre al minimo i disimpegni per sfruttare tutti i mq esistenti, eliminare i muri per aumentare la luminosità e creare un grande open space con living e cucina a vista.
Il progetto non deve stancare negli anni, dovrà ridistribuire in maniera moderna, essenziale e funzionale lo spazio
STILE
Vorrei che la casa fosse luminosa e al contempo calda e accogliente.
Mi piacciono:
– Lo stile moderno per la luminosità e l’ampiezza che dona agli ambienti.
Vedi riferimenti.
Mi piacerebbe quindi uno stile moderno di base.
Le mie esigenze specifiche per ogni ambiente:
CAMERA DA LETTO
– Un letto matrimoniale con comodini dotati di cassetti(va bene anche 1 comodino ed un tavolino per una lampada )
– Un armadio , non difronte al letto(misura letto 1750 x 1950) . Mi piace l’effetto degli armadi a muro/a tutta altezza
– Mi piacerebbe caratterizzare una delle pareti con qualche particolare ( si accettano consigli )
N. 2 camere per le mie figlie, ho necessità di inserire per entrambe un letto da 1 piazza e mezza da 1400 x 1950 un comodino, una scrivania da 1000/1200 ed un armadio da 2400 minimo ed una TV a parete.
1^ BAGNO di servizio : Ho necessità di ricavare un altro bagno di servizio che non serve le camere da letto( anche cieco e senza bidet se necessario) con lavabo con mobile,doccia, un termo arredo, specchio e possibilità di ospitare una lavatrice slim da 450 x 500
2^ Bagno : Dovrà essere quello principale che serve le camere da letto dovrà avere una doccia più ampia ( come da foto) lavabo, WC e Bidet, mobile, specchio, termo arredo.
LAVANDERIA
– Non è richiesto un locale lavanderia. La l’asciugatrice ( 600x 600) può essere inserita incassata anche in qualche armadio a muro.
RIPOSTIGLIO
– Sarebbe utile, ma non è obbligatorio. Può essere ricavato solo se non toglie eccessivo spazio agli altri ambienti. Altrimenti può essere sostituito da qualche armadio a muro capiente.
OPEN-SPACE
– La zona living dovrebbe occupare la maggior parte dell’open space rispetto alla cucina
– Un singolo divano frontale a 3 posti con chaise longue rispetto alla tv a parete o su mobile basso (almeno 65 pollici) posizionata in una parete (questa zona verrà vissuta molto quindi è abbastanza importante). Vicino alla zona tv dovrebbe essere prevista una lampada da terra o da tavolo con luce calda tenue e diffusa ed un mobile basso da arredo.
– CUCINA: mi piacerebbe che fosse incassata a filo controsoffitta. Ma sono aperto ad altre soluzioni se le reputate migliori.
La cucina dovrebbe avere una vasca con gocciolatoio (modulo 90 cm) e un piano di lavoro adeguato. In caso di necessità si potrebbe rinunciare alla colonna forno. Il frigo preferirei che fosse incassato in colonna. Si lavastoviglie e no piani snack. Potrebbe avere un’isola/penisola. Se qualche soluzione prevede il lavello sotto la finestra, dovrebbe essere previsto almeno uno scolapiatti estraibile nel cassetto di una base a fianco, non essendo possibile prevederlo nel pensile. Dovrebbe essere previsto uno spazio abbastanza capiente per la dispensa.
– E’ sufficiente un tavolo da pranzo per 4 prolungabile a 6 persone
ALTRO
Mi piacerebbe dare un tocco particolare alle pareti sia con utilizzo di tende a scomparsa dietro la veletta del contro soffitto, sia dal punto di vista della tinteggiatura ( si accettano consigli)
NB: Tassativamente mi occorrono per ogni camera indicazione delle misure (almeno 2) e le misure anche degli arredi che saranno tutti nuovi.
TRANSLATION IN ENGLISH
PROPERTY DESCRIPTION
The 90 sqm apartment is inhabited by 4 people. The property is located in Naples and is in the state illustrated in the plan, as shown in the attached photos.
Here are our needs:
Create a third bedroom even with possible blind solution (alternative proposals are also accepted even if our preference is to have 3 independent rooms)
Obtain an additional bathroom, even blind (you propose the best solution)
Obtain a small closet where you can also arrange drying and washing machines eg possibly also using the current built-in wardrobe ( measures 2200 x 600) on the corridor wall offering you the best solution.
An open space area (kitchen living room) as bright as possible. It is necessary to use the balcony in this environment.
Note:
At present, the drains are all concentrated where the current bathroom is and there are no other usable ones (I report this info because it can be useful as information for the second bathroom to be built as well as for any kitchen and washing machine drain)
Possibility of breaking down if necessary, all the walls currently present to make the appropriate changes to achieve what is required.
Property details:
The apartment has 2 exposures:
1. 1 south / east balcony overlooking other distant buildings (currently there is the master bedroom)
2. 2 windows and 2 balconies facing north / west, overlooking another building currently there are living room, kitchen, bathroom and bedroom.
All the walls are partitions, there are 2 pillars on the wall bordering the neighbor's apartment, one in the current living room and the other near the built-in wardrobe. The heating is autonomous. The ceiling height is 3.10
GENERAL REQUEST
The need is to redistribute the spaces trying to eliminate / minimize the hallways to take advantage of all the existing square meters, eliminate the walls to increase the brightness and create a large open space with living room and kitchen.
The project must not tire over the years, it must redistribute the space in a modern, essential and functional way
STYLE
I would like the house to be bright and at the same time warm and welcoming.
I like them:
- The modern style for the brightness and breadth it gives to the rooms.
See references.
I would therefore like a basic modern style.
My specific needs for each environment:
BEDROOM
- A double bed with bedside tables equipped with drawers (1 bedside table and a small table for a lamp are also fine)
- A wardrobe, not in front of the bed (bed size 1750 x 1950). I like the effect of the built-in / full-height wardrobes
- I'd like to characterize one of the walls with some details (advice is accepted)
N. 2 bedrooms for my daughters, I need to insert for both a queen size bed 1400 x 1950, a bedside table, a desk of 1000/1200 and a wardrobe of minimum 2400 and a wall-mounted TV.
1st service BATHROOM: I need to create another service bathroom that does not serve the bedrooms (also blind and without bidet if necessary) with sink with cabinet, shower, a heated towel rail, mirror and the possibility of hosting a slim washing machine from 450x 500
2nd Bathroom: It must be the main one serving the bedrooms, it must have a larger shower (as in the photo), sink, toilet and bidet, cabinet, mirror, heated towel rail.
LAUNDRY
- A laundry room is not required. The dryer (600x 600) can also be inserted recessed in some built-in closet.
CLOSET
- It would be useful, but it's not mandatory. It can only be obtained if it does not take away excessive space from the other rooms. Otherwise it can be replaced by some large built-in wardrobe.
OPEN-SPACE
- The living area should take up most of the open space compared to the kitchen
- A single 3-seater front sofa with chaise longue compared to the TV on the wall or on a low cabinet (at least 65 inches) positioned in a wall (this area will be lived a lot so it is quite important). Near the TV area there should be a floor or table lamp with soft and diffused warm light and a low piece of furniture.
- KITCHEN: I would like it to be built in flush with the false ceiling. But I am open to other solutions if you think they are better.
The kitchen should have a drip tray (90 cm module) and a suitable worktop. If necessary, the oven column could be omitted. I would prefer the fridge to be built into the column. Yes dishwasher and no snack tops. It could have an island / peninsula. If any solution provides for the sink under the window, at least one removable dish drainer should be provided in the drawer of a side base, as it cannot be foreseen in the wall unit. There should be enough room for the pantry.
- A dining table for 4 that can be extended to 6 people is sufficient
OTHER
I would like to give a special touch to the walls both with the use of retractable curtains behind the veil of the false ceiling, and from the point of view of painting (advice is accepted)
NB: For each room I need to indicate the measurements (at least 2) and the measurements of the furnishings as well.
SPA VERS:
DESCRIPCIÓN DE PROPIEDAD
El apartamento de 90 metros cuadrados está habitado por 4 personas La propiedad está ubicada en Nápoles y está en el estado ilustrado en el plano, como se muestra en las fotos adjuntas.
Estas son nuestras necesidades:
Conseguir un tercer dormitorio incluso con posible solución ciega (También se aceptan propuestas alternativas aunque nuestra preferencia sea tener 3 habitaciones independientes)
Obtener un baño adicional, incluso ciego (proponer la mejor solución)
Conseguir un pequeño armario donde también pueda poner las secadoras y lavadoras por ejemplo, posiblemente utilizando también el armario (medidas 2200 x 600) empotrado actual en la pared del pasillo propongan ustedes la mejor solución.
Un área de espacio abierto (sala de estar de la cocina) lo más brillante posible. Es necesario utilizar el balcón en este ambiente.
Nota:
En la actualidad, los desagües están todos concentrados donde está el baño actual y no hay otros utilizables (reporto esta información porque puede ser útil como información para el segundo baño a construir así como para cualquier desagüe de cocina y lavadora).
Posibilidad de derribar si es necesario, todos los muros actualmente presentes para realizar los cambios oportunos para lograr lo que se requiere.
Detalles de la propiedad:
El apartamento tiene 2 exposiciones:
1. 1 balcón sur / este con vista a otros edificios distantes (actualmente está el dormitorio principal)
2. 2 ventanas y 2 balcones orientados al norte / oeste, con vista a otro edificio actualmente hay sala, cocina, baño y dormitorio.
Todos los muros son de tabiques, hay 2 pilares en el muro que bordea el apartamento del vecino, uno en el salón actual y el otro cerca del armario empotrado. La calefacción es autónoma. La altura del techo es de 3,10
SOLICITUD GENERAL
La necesidad es redistribuir los espacios tratando de eliminar / minimizar los pasillos para aprovechar todos los metros cuadrados existentes, eliminar las paredes para aumentar la luminosidad y crear un gran espacio diáfano con sala y cocina.
El proyecto no debe cansar con los años, se debe redistribuir el espacio de una manera moderna, esencial y funcional
ESTILO
Me gustaría que la casa fuera luminosa y al mismo tiempo cálida y acogedora.
Me gustan:
- El estilo moderno por la luminosidad y amplitud que le da a las habitaciones.
Ver referencias.
Por tanto, me gustaría un estilo moderno básico.
Mis necesidades específicas para cada entorno:
HABITACIÓN
- Una cama doble con mesitas de noche equipadas con cajones (1 mesita de noche y una mesa para lámpara también están bien)
- Un armario, no delante de la cama (tamaño de cama 1750 x 1950). Me gusta el efecto de los armarios empotrados / de altura completa
- Me gustaría caracterizar una de las paredes con algunos detalles (se aceptan consejos)
N. 2 dormitorios para mis hijas, necesito insertar tanto para una cama queen size de 140 x 1950 una mesita de noche, un escritorio de 1000/1200 y un armario de mínimo 2400 y un televisor de pared.
1er BAÑO de servicio: Necesito crear otro baño de servicio que no sirva a los dormitorios (también ciego y sin bidet si es necesario) con lavabo con mueble, ducha, toallero calefacción, espejo y posibilidad de albergar una lavadora delgada desde 450x 500
2do Baño: Debe ser el principal que atiende a los dormitorios, debe tener una ducha más grande (como en la foto), lavabo, inodoro y bidet, mueble, espejo, calentador de toallas.
LAVANDERÍA
- No se requiere cuarto de lavado. La secadora (600x 600) también se puede insertar empotrada en algún armario empotrado.
ARMARIO
- Sería útil, pero no obligatorio. Solo se puede obtener si no quita espacio excesivo a las otras habitaciones. De lo contrario, puede ser reemplazado por un gran armario de pared.
ESPACIO ABIERTO
- La sala de estar debe ocupar la mayor parte del espacio abierto en comparación con la cocina.
- Un solo sofá delantero de 3 plazas con chaise longue frente al televisor de pared o sobre mueble bajo (al menos 65 pulgadas) colocado en una pared (esta zona estará muy habitada por lo que es bastante importante). Cerca del área de la TV debe haber una lámpara de piso o de mesa con luz cálida suave y difusa y un mueble bajo.
- COCINA: Me gustaría que se empotrara a ras del falso techo. Pero estoy abierto a otras soluciones si cree que son mejores.
La cocina debe tener una bandeja recogegotas (módulo de 90 cm) y una encimera adecuada. Si es necesario, se puede omitir la columna del horno. Preferiría que la nevera estuviera empotrada en la columna. Sí lavaplatos y sin tapas de bocadillos. Podría tener una isla / península. Si alguna solución prevé el fregadero debajo de la ventana, se debe proporcionar al menos un escurridor de platos extraíble en el cajón de una base lateral, ya que no se puede prever en el mueble de pared. Debe haber suficiente espacio para la despensa.
- Una mesa de comedor para 4 que se puede ampliar a 6 personas es suficiente
OTRO
Me gustaría darle un toque especial a las paredes tanto con el uso de cortinas retráctiles detrás del velo del falso techo, como desde el punto de vista de la pintura (se aceptan consejos)
NB: Para cada habitación necesito indicar las medidas (al menos 2) y las medidas del mobiliario también.