
Tavagnacco, UD, Italia
Residential - Villa
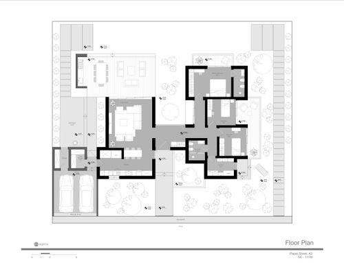
Briefing
ENG:
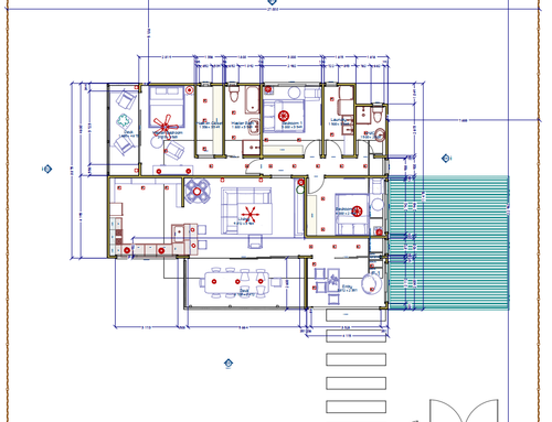
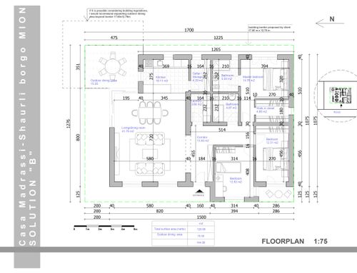
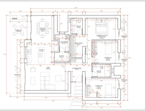
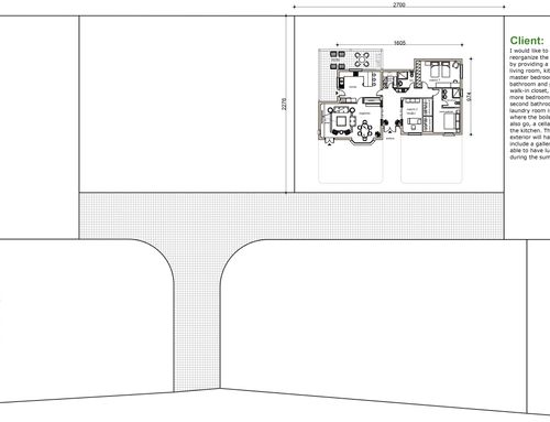
Roberto and Luisa want to build a villa of maximum 140-145 m2, I would like to reorganize the interiors by providing a large living room, kitchen, master bedroom with bathroom and possibly walk-in closet, then 2 more bedrooms, a second bathroom, a laundry room is needed where the boilers will also go, a cellar serving the kitchen. The exterior will have to include a gallery to be able to have lunch during the summer
SPA:
Roberto y Luisa quieren construir una villa de máximo 140-145 m2, me gustaría reorganizar los interiores planificando una gran sala de estar, cocina, dormitorio principal con baño y posiblemente vestidor, luego 2 dormitorios más, un segundo baño, se necesita un lavadero donde también se colocarán las calderas, una bodega que dé servicio a la cocina. El exterior debe incluir una galería para poder comer durante los meses de verano.
ITA:
Roberto e Luisa vogliono realizzare una villetta di massimo 140-145 m2, vorrei riorganizzare gli interni prevedendo ampio salone cucina living camera padronale con bagno e possibilmente cabina armadio, poi altre 2 camere , un secondo bagno, serve una lavanderia dove ci andranno anche le caldaie, una cantinetta a servizio cucina. Esterno dovrà prevedere un loggione per poter pranzare durante la bella stagione