
Naples, Metropolitan City of Naples, Italy
Residential - Apartment
Briefing
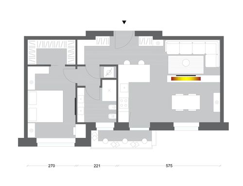
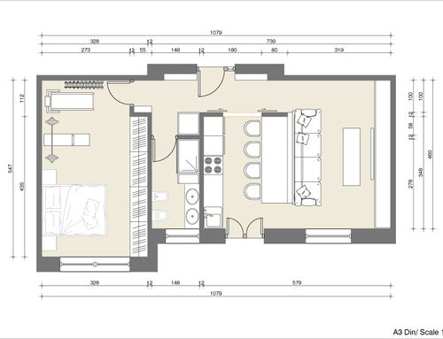
Salve a tutti. Ecco la mia idea per il mio appartamento di 60mq: vorrei creare una cucina open space con isola/pensiola, unico ambiente con soggiorno, se neccessario, a proprio piacimento invertire gli ambienti. Nella zona open space mi piacerebbe avere un camino bioetanolo, ma lascio a voi l'idea se puó star bene o no a seconda dello spazio disponibile. Al posto del ripostiglio che credo andrebbe leggermente ampliato, vorrei creare una cabina armadio,porte scorrevoli e riflettenti, con accesso ovviamente dalla camera da letto. Nel bagno mi piacerebbero i sanitari sospesi per ampliare otticamente la camera, il doppio lavabo e doccia vetrata a filo pavimento. Per quanto riguarda l'illuminazione, vorrei un giusto mix tra faretti e lampadari o lampade. Le finestre vorrei mettere infissi scorrevoli. Mi piace lo stile un po' moderno, un po'americano, con colori pareti/arredamento chiari, e l'idea è quella di mettere il parquet come pavimento. Arredamento e materiali con buon rapporto qualità/prezzo. Questa è per farvi capire la mia idea-progetto, ovviamente lascio tutto in mano a voi ed alla vostra professionalità, soprattutto nella fattibilità delle cose, ma comunque sarei lieto ad ogni modo di vedere nuove idee e proposte fatte da voi. Per qualsiasi cosa chiedete pure, grazie mille.
ENG
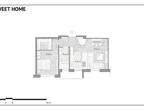
Hello everyone. Here is my idea for my 60sqm apartment: I would like to create an open space kitchen with island / thinkula, single room with living room, if necessary, to your liking invert the rooms.In the open space area I would like to have an ethanol fireplace, but I leave you the idea whether it can be good or not depending on the space available. In place of the closet, which I think should be slightly enlarged, I would like to create a walk-in closet, sliding and reflective doors, obviously with access from the bedroom. In the bathroom I would like the suspended sanitary ware to optically expand the room, the double sink and glass shower flush with the floor. As for lighting, I would like a right mix of spotlights and chandeliers or lamps. The windows, I would like to put sliding frames. I like the slightly modern, slightly American style, with light walls / furniture colors, and the idea is to use parquet as a floor. Furniture and materials with good quality / price ratio. This is to make you understand my idea-project, obviously I leave everything in the hands of you and your professionalism, especially in the feasibility of things, but in any case I would be happy to see new ideas and proposals made by you. For anything you can ask, thank you very much.
SPA
Hola a todos. Les dejo mi idea para mi apartamento de 60 metros cuadrados:me gustaría crear una cocina de espacio abierto con isla / thinkula, habitación individual con sala de estar, si es necesario, a tu gusto invierte las habitaciones. En la zona diáfana me gustaría tener una chimenea de bioetanol, pero les dejo la idea de si puede ser buena o no dependiendo del espacio disponible. En lugar del armario, que creo que debería ampliarse un poco, me gustaría crear un vestidor, puertas correderas y reflectantes, obviamente con acceso desde el dormitorio. En el baño me gustaría que los sanitarios suspendidos amplíen ópticamente la habitación, el lavabo doble y la ducha de cristal a ras del suelo. En cuanto a la iluminación, me gustaría una combinación adecuada de focos y candelabros o lámparas. Las ventanas, incluido, me gustaría poner marcos deslizantes. Me gusta el estilo ligeramente moderno, ligeramente americano, con paredes / muebles de colores claros, y la idea es utilizar parquet como suelo. Mobiliario y materiales con buena relación calidad / precio. Esto es para hacerles entender mi idea del proyecto, obviamente dejo todo en sus manos y en su profesionalidad, sobre todo en la viabilidad de las cosas, pero en cualquier caso me encantaría ver nuevas ideas y propuestas hechas por ustedes. Para cualquier cosa que puedas preguntar, muchas gracias.