
09170 Oristano, Province of Oristano, Italy
Residential - Apartment
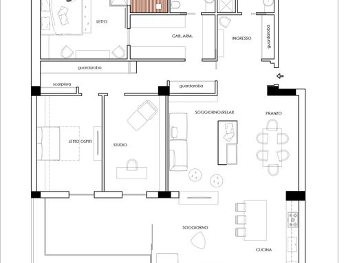
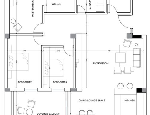
Briefing
I desire modern styles and lines. The house has large spaces now divided in several separated rooms that I want to make more aerous and modern. Considered that I live alone I would like wider spaces compared to the present house layout. Than I would like a wider living room and bathroom.
Deseo estilos y líneas modernas. La casa tiene grandes espacios ahora divididos en varias habitaciones separadas que quiero hacer más aerodinámicas y modernas. Teniendo en cuenta que vivo solo, me gustaría tener espacios más amplios en comparación con la distribución actual de la casa. De lo que me gustaría una sala de estar y un baño más amplios.