
26013 Crema, Province of Cremona, Italy
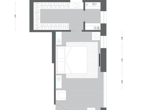
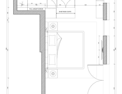
Residential - Sleaping Area
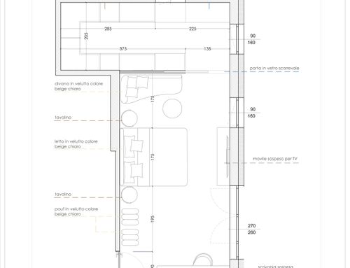
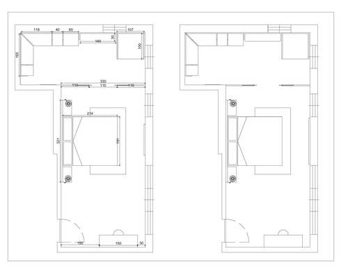
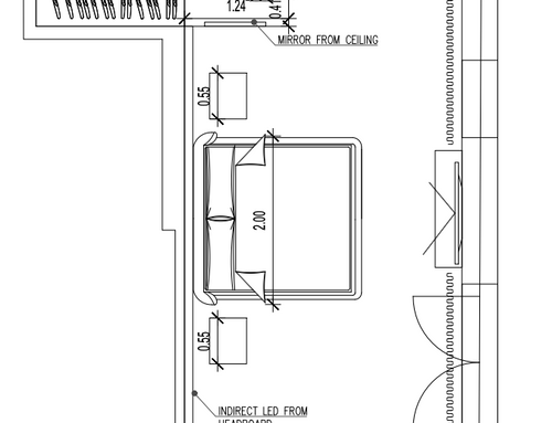
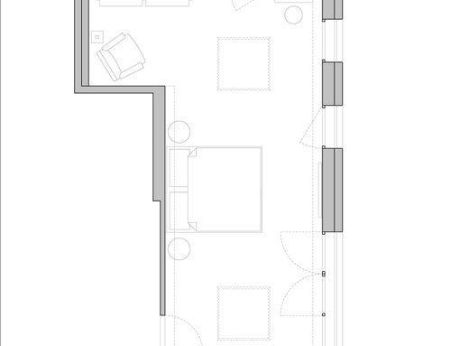
Briefing
ENG:
I would like a room design with furnishings in a modern but elegant environment, the room faces south. I would like colors with beige tones, light silk, the parquet is light natural oak, white doors. Above presence of LEDs
SPA:
Me gustaría un diseño de habitación con muebles en un ambiente moderno pero elegante, la habitación está orientada al sur. Me gustaría colores con tonos beige, seda clara, el parquet es de roble natural claro, puertas blancas. Arriba presencia de LED
ITA:
Vorrei una progettazione della camera con gli arredi in un ambiente moderno ma elegante, la camera è esposta a sud. Vorrei colori con tonalita sul beige, seta chiaro il parquet é rovere naturale chiaro porta bianche. Sopra presenza di led