
63066 Grottammare, Province of Ascoli Piceno, Italy
Residential - Apartment
Briefing
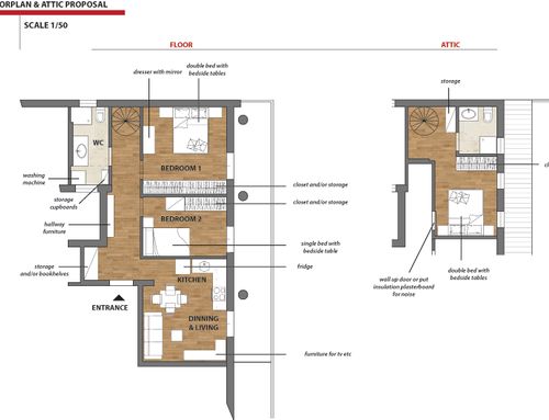
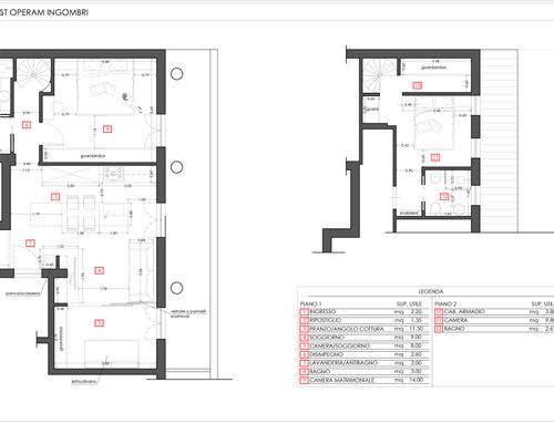
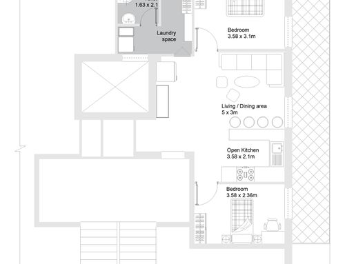
Vorrei ridefinire gli spazi attuali dell' appartamento per realizzare, sul piano principale, un ambiente unico per la sala e la cucina, ricavare una cameretta con uno o due letti singoli oltre alla matrimoniale già esistente, inserire una doccia nel bagno al posto della vasca e ricavare ripostigli e una zona lavanderia dove possibile. Al piano di sopra, la soffitta, vorrei realizzare una camera matrimoniale o doppia con piccolo bagno.
I would like to modify the layout of the apartment on the first floor in order to realize an open-plan kitchen, an extra bedroom, in addition to the bedroom already existing, with one or two single beds, put a shower in the bathroom removing the bath and realize storage closets and a small laundry where possible. On the second floor, the loft, I would like to realize a bedroom with a double bed or two single beds and a small bathroom.
Me gustaría redefinir los espacios actuales del apartamento para crear, en la planta principal, una habitación individual para la sala y la cocina, crear un dormitorio con una o dos camas individuales además de la cama doble existente, insertar una ducha en el baño en lugar de la bañera y cree armarios y un área de lavado cuando sea posible. Arriba, el ático, me gustaría crear una habitación doble o doble con un baño pequeño.