
Roma, RM, Italia
Residential - Apartment
Briefing
ITA:
Descrizione del progetto di ristrutturazione.
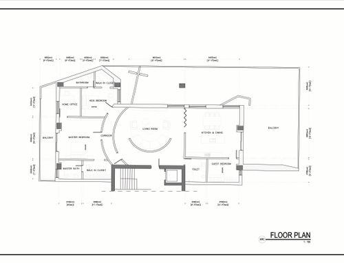
**Tutti i tramezzi possono essere demoliti, incluso quello piĂą grande indicato con i due cerchi- Non abbiamo vincoli per gli scarichi dei bagni o allacci della cucina, provvederemo a spostarli - Entrambi gli appartamenti A1 e A2 devono essere uniti e l'ingresso dell''appartamento sarĂ quello centrale presente sulla tromba delle scale**
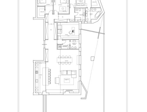
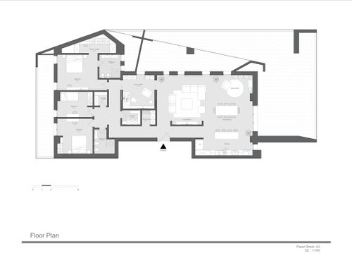
L’obiettivo della ristrutturazione è trasformare l’attuale appartamento in una residenza moderna, funzionale e luminosa, capace di rispondere alle esigenze di una famiglia contemporanea. Si richiede una distribuzione razionale degli spazi interni, con particolare attenzione all’ergonomia, alla qualità dei materiali e all’estetica complessiva.
Spazi richiesti nel nuovo layout:
Tre camere da letto, di cui:
Una camera padronale con cabina armadio e bagno en suite, che garantisca privacy e comfort.
Due camere secondarie da destinare a figli, ospiti o altri membri della famiglia.
Uno studio: ambiente dedicato al lavoro da casa, silenzioso, ben illuminato e ben separato dalle zone di passaggio.
Due bagni completi: uno principale accessibile dalla zona giorno o dal corridoio notte, e uno privato all’interno della suite padronale.
Un ampio salone living: spazio conviviale e accogliente, da destinare al relax, all’intrattenimento e alla socialità . Si richiede particolare attenzione alla luce naturale e alla continuità visiva con la cucina.
Una cucina comoda e funzionale, ben attrezzata, eventualmente separabile o semi-aperta sul soggiorno, con spazio sufficiente per una zona pranzo quotidiana.
Una lavanderia indipendente, attrezzata per lavaggio, asciugatura e stiratura, possibilmente separata dalla zona bagno.
Un ripostiglio/dispensa: utile per lo stoccaggio di materiali, elettrodomestici e provviste.
Stile desiderato:
L’intero appartamento dovrà riflettere uno stile moderno, dalle linee pulite, con spazi ariosi e soluzioni funzionali. Si prediligono materiali contemporanei, finiture di qualità , soluzioni salvaspazio e un’attenta progettazione dell’illuminazione naturale e artificiale.
ENG:
Description of the renovation project.
** All partitions can be demolished, including the largest one indicated with the two circles - We have no constraints for bathroom drains or kitchen connections, we will move them - Both apartments A1 and A2 must be joined and the entrance to the apartment will be the central one on the stairwell **
The goal of the renovation is to transform the current apartment into a modern, functional and bright residence, capable of meeting the needs of a contemporary family. A rational distribution of the interior spaces is required, with particular attention to ergonomics, quality of materials and overall aesthetics.
Spaces required in the new layout:
Three bedrooms, including:
A master bedroom with walk-in closet and en suite bathroom, which guarantees privacy and comfort.
Two secondary bedrooms to be used by children, guests or other family members.
A study: a space dedicated to working from home, quiet, well-lit and well separated from the passageways.
Two complete bathrooms: a main one accessible from the living area or the sleeping corridor, and a private one inside the master suite.
A large living room: a convivial and welcoming space, to be used for relaxation, entertainment and socializing. Particular attention is required to natural light and visual continuity with the kitchen.
A comfortable and functional kitchen, well equipped, possibly separable or semi-open to the living room, with enough space for a daily dining area.
An independent laundry room, equipped for washing, drying and ironing, possibly separated from the bathroom area.
A storage room/pantry: useful for storing materials, appliances and supplies.
Desired style:
The entire apartment should reflect a modern style, with clean lines, airy spaces and functional solutions. Contemporary materials, quality finishes, space-saving solutions and careful planning of natural and artificial lighting are preferred.