
23038 Valdidentro, Province of Sondrio, Italy
Residential - Apartment
Briefing
ITA AGGIORNAMENTO PROGETTO
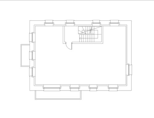
si tratta di ristrutturare un appartamento mansardato al primo piano in una casa di montagna con tetto in travetti a vista
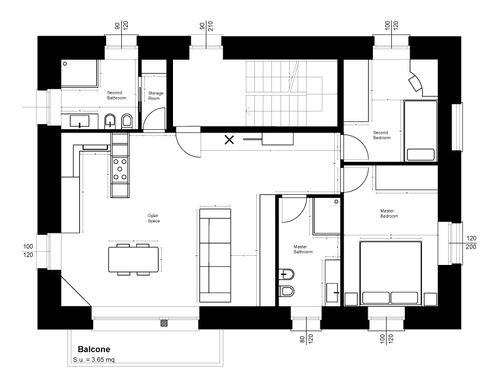
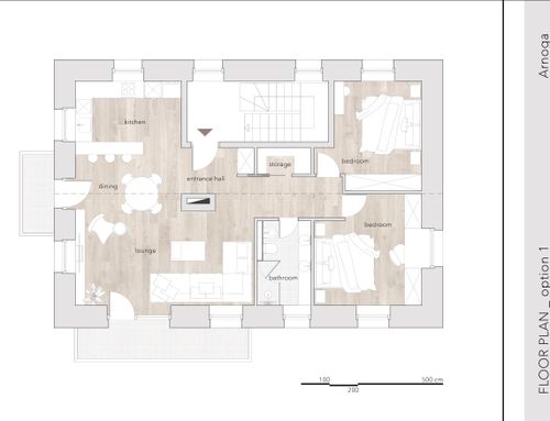
abbiamo inserito 2 soluzioni che ci piacerebbe sperimentare si chiede 2 camere da letto un bagno , sala e cucina (aperta) , piccolo ripostiglio e caminetto a legna .
considerando la spettacolare vista a sud , è possibile realizzare la finestra a sud larga 3.50 metri l'apertura per l'accesso al balcone puo essere a sinistra o a destra , le finestre se necessario possono ancora essere leggermente spostate.
grazie
EN PROJECT UPDATE
it involves the renovation of an attic apartment on the first floor in a mountain house with exposed beam roof
we have included 2 solutions that we would like to experiment with, we ask for 2 bedrooms, a bathroom, living room and kitchen (open), small closet and wood-burning fireplace.
considering the spectacular view to the south, it is possible to make the south window 3.50 meters wide the opening for access to the balcony can be on the left or on the right, the windows can still be slightly moved if necessary.
Thank you
SPA ACTUALIZACIÓN DEL PROYECTO ITA
se trata de la reforma de un ático en la primera planta de una casa montañesa con tejado de vigas vistas
Hemos incluido 2 soluciones con las que nos gustaría experimentar, pedimos 2 dormitorios, un baño, salón y cocina (abierta), pequeño armario y chimenea de leña.
teniendo en cuenta la espectacular vista hacia el sur, es posible hacer la ventana sur de 3,50 metros de ancho, la abertura de acceso al balcón puede estar a la izquierda o a la derecha, las ventanas aún se pueden mover ligeramente si es necesario.
Gracias