
72015 Fasano, BR, Italy
Residential - Living/Sleeping Area
Briefing
ENG:
A not very modern style, the apartment will not undergo a total restoration, but the minimum necessary.
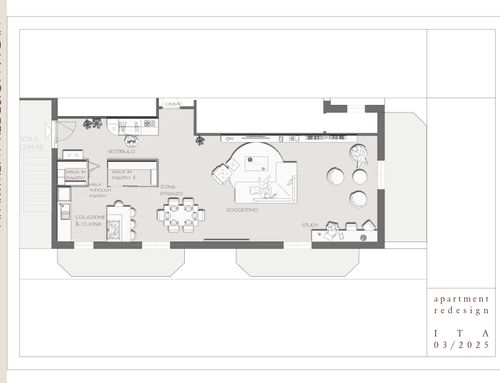
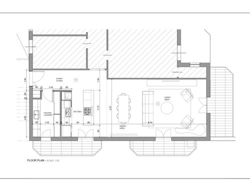
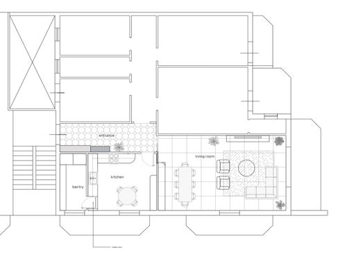
Entering from the entrance door from the stairwell we look out onto a single room of about 70/75 square meters with 3 French windows and a window.
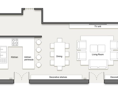
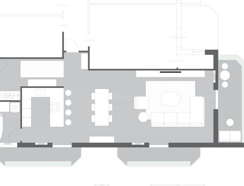
About halfway up the room on the left you enter the sleeping area. I will show you the two possible solutions for the kitchen area where the water and drainage connections can be arranged: first solution entering on the right, second solution at the end of the room on the left side.
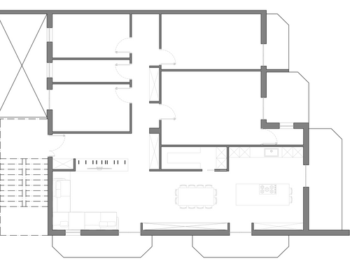
From the sleeping area you can draw from an arched entrance, which could be eliminated by giving light to a load-bearing beam. (visible knife-edge beam)
Between the sleeping area entrance and the end of the room, on the left side there is a door that will be walled up. Previously it communicated with another room.
Given the size, I don't know if it would be appropriate to divide the kitchen area with the living room and perhaps allocate a pantry space for the kitchen, or create another room.
The floor is in marble, Perlato di Sicilia
There is a frame between the ceiling and the walls, a frame made of plaster.
In this regard, the radiators will not be moved, in the case of the one to the right of the entrance yes, if necessary to create walls or other.
I consider a living room solution with an open kitchen, or a closed kitchen.
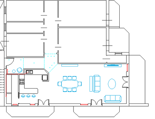
N.B. The area concerned is the one that is outlined in the plan photo, i.e. the living area. It can be noted that at the moment the partitions from the plan are not present.
SPA:
No es un estilo muy moderno, el apartamento no sufrirá una restauración total, pero sí la mínima necesaria.
Entrando por la puerta de entrada desde la escalera nos encontramos con una habitación individual de aproximadamente 70/75 m2 con 3 puertas ventana y una ventana.
Aproximadamente a la mitad de la habitación, a la izquierda, se accede a la zona de dormir. Os voy a mostrar las dos posibles soluciones para la zona de la cocina donde se pueden disponer las conexiones de agua y desagüe: primera solución entrando por la derecha, segunda solución al final de la estancia del lado izquierdo.
A la zona de noche se accede a través de un arco de entrada, que podría eliminarse dando luz a una viga portante. (haz de filo de cuchillo visible)
Entre la entrada a la zona de dormir y el final de la habitación, en el lado izquierdo hay una puerta que será tapiada. Anteriormente se comunicaba con otra habitación.
Dado el tamaño, no sé si sería conveniente dividir la zona de la cocina del salón y quizás destinar un espacio de despensa para la cocina, o crear otra estancia.
El suelo es de mármol, Perlato di Sicilia.
Entre el techo y las paredes hay un marco hecho de yeso.
En este sentido no se moverán los radiadores, en este caso se moverá el que está a la derecha de la entrada, si es necesario para crear paredes u otras cosas.
Considero una solución de salón con cocina abierta, o bien, una cocina cerrada.
NÓTESE BIEN. La zona en cuestión es la que aparece marcada en la foto del plano, es decir la zona de estar. Se puede observar que en la etapa actual no se encuentran presentes las particiones del plano de planta.
ITA:
Uno stile non molto moderno, l'appartamento non subirà un totale restauro, ma il minimo necessario.
Entrando dalla porta di ingresso dal vano scala ci affacciamo ad un unico ambiente di circa 70/75 mq con 3 porte finestre e finestra.
A circa metà stanza a sinistra si accede alla zona notte. Vi indico le due possibili soluzioni della zona cucina dove possono essere predisposti gli attacchi di acqua e scarico: prima soluzione entrando sulla destra, seconda soluzione infondo alla stanza lato sinistro.
Dalla zona notte di attinge da un ingresso ad arco, che potrebbe essere eliminato dando luce ad una trave portante. ( trave visibile a coltello )
Tra l'ingresso zona notte e la parte terminale dell'ambiente, sul lato sinistro c'è una porta che verrà murata. In precedenza comunicava con un altra stanza.
Visto le dimensioni, non so se sarebbe opportuno suddividere zona cucina con salone e magari destinare uno spazio dispensa per cucina, oppure creare un altro ambiente.
Il pavimento è in marmo, Perlato di Sicilia
E presente una cornice tra il soffitto e le pareti, cornice fatta da intonaco.
A riguardo i calorifici non subiranno spostamenti, nel caso quello alla destra dell 'ingresso sì ,se necessario a creare delle murature o altro.
Considero soluzione living con cucina a vista, oppure cucina chiusa.
N.B. L'aria interessata è quella che in foto planimetria è tratteggiata ovvero la zona giorno. Si può notare che allo stato attuale non sono presente le tramezzature da planimetria.