
Rome, Metropolitan City of Rome Capital, Italy
Residential - Apartment
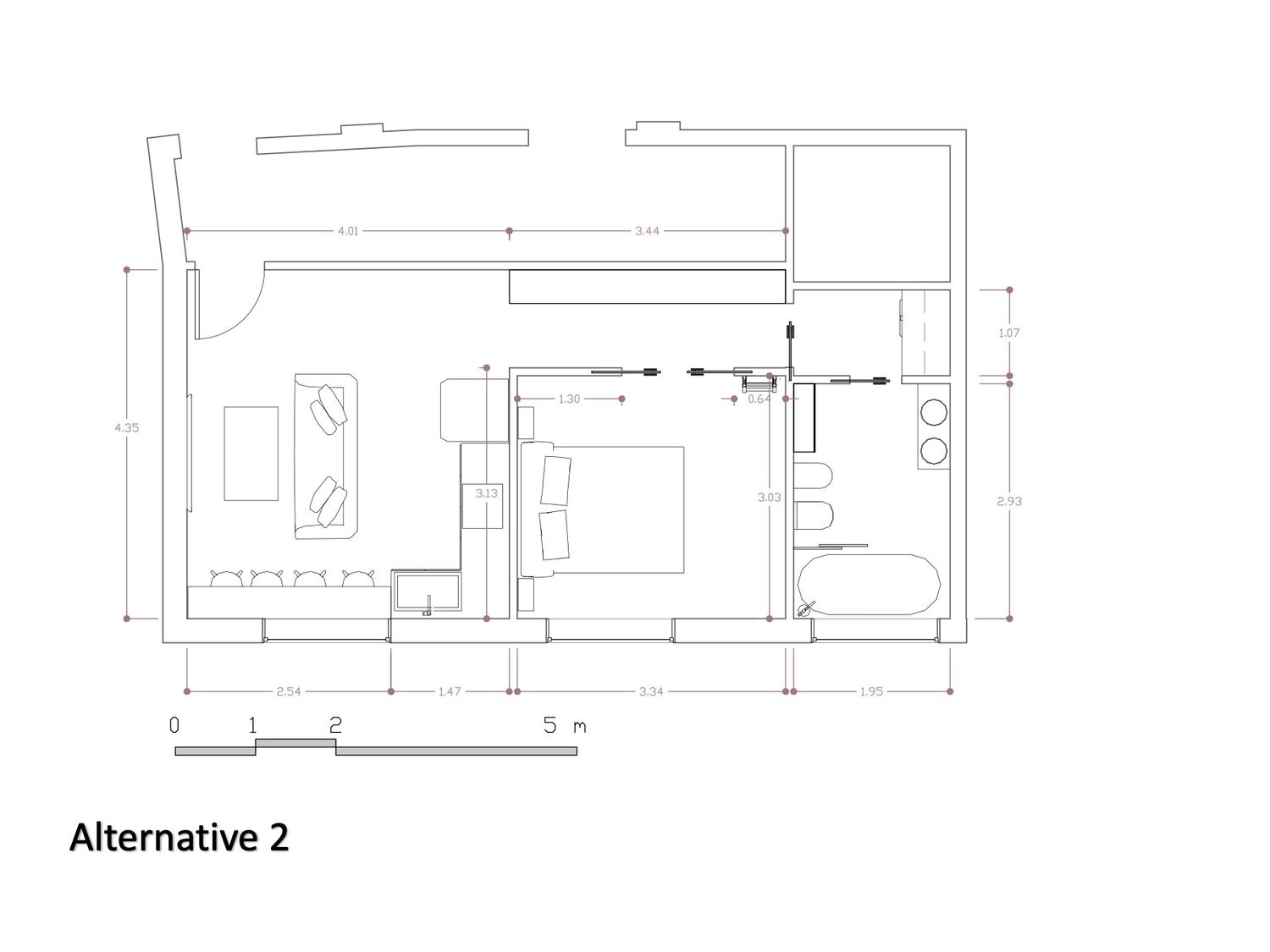
Since you mentioned the idea of a mezzanine, I’ve prepared two alternatives for you:
one with a mezzanine where the bedroom is on the upper level, and another where only built-in closets are placed above.
I’ve also attached the 3D file so you can visualize both designs.
In the first option, I used stairs, placing the kitchen and island on the lower level — this layout fully meets the design standards.
In the second option, to access the upper mezzanine, I added a ladder in the bedroom so you can keep the living area open and spacious.
In both layouts, I maximized storage by adding built-in closets wherever possible to meet your needs.
I hope you like them!