
Rome, Metropolitan City of Rome Capital, Italy
Residential - Apartment
Briefing
ENG:
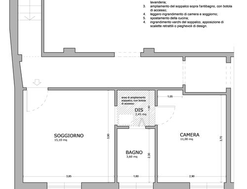
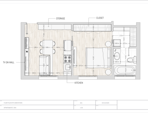
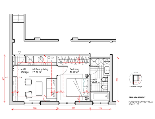
The project concerns a renovation with a limited budget, with the objective of maximizing the efficiency of the available space.
Key requirements:
Integration of a small sofa/relaxation area within the living room/kitchenette.
Optimization of the vertical space: the apartment has very high ceilings and an existing elevated storage area. The goal is to use this element efficiently while also making it an integral part of the interior design.
Solutions can be proposed in both classic and modern styles, as long as they ensure functionality, harmony, and aesthetic value.
Cost-effective solutions and smart space-saving strategies are highly appreciated.
SPA:
El proyecto se refiere a una reforma con presupuesto limitado, cuyo objetivo es maximizar la eficiencia del espacio disponible.
Requisitos principales:
Integración de un pequeño sofá/zona de relax en la sala de estar/cocina americana.
Optimización del espacio vertical: la vivienda cuenta con techos muy altos y un trastero en la parte superior. El objetivo es aprovechar este elemento de manera eficiente y que, al mismo tiempo, forme parte integral del diseño interior.
Se aceptan propuestas tanto en estilos clásicos como modernos, siempre que garanticen funcionalidad, armonía y valor estético.
Se valorarán especialmente las soluciones económicas y las estrategias inteligentes de aprovechamiento del espacio.
ITA:
Vorrei una ristrutturazione con costi contenuti ma facendo un buon uso del poco spazio a disposizione. Specialmente vorrei un piccolo divano/area relax nel soggiorno / angolo cottura. Inoltre avendo soffitti molto alti e ripostiglio in alto, vorrei usarlo in modo efficiente ma che sia anche parte dell'arredo. qualunque idea anche con stili classici o moderni è ben accetta. grazie