
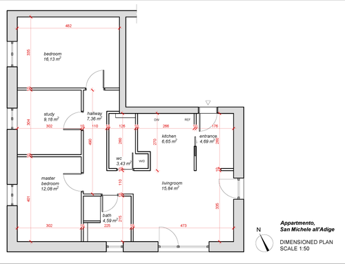
San Michele All'adige, TN, Italia
Residential - Apartment
Briefing
ENG:
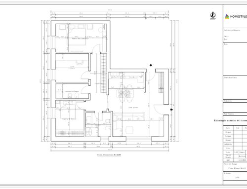
Hello everyone, I am about to buy this apartment of about 85 square meters.
I would like to understand the best layout of the rooms, taking into account that the windows and the entrance door cannot be moved.
I would like to obtain:
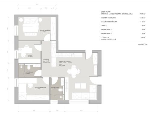
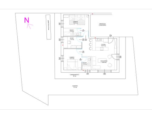
- a living area (living room-kitchen) as large as possible, however minimum 30 square meters
- a double bedroom of 13/14 square meters
- a single bedroom of 9/11 square meters
- a study/third room of 8/9 square meters
- a main bathroom of 5/6 square meters
- a laundry room/secondary bathroom of 4/5 square meters
if possible a small storage room but it is not essential.
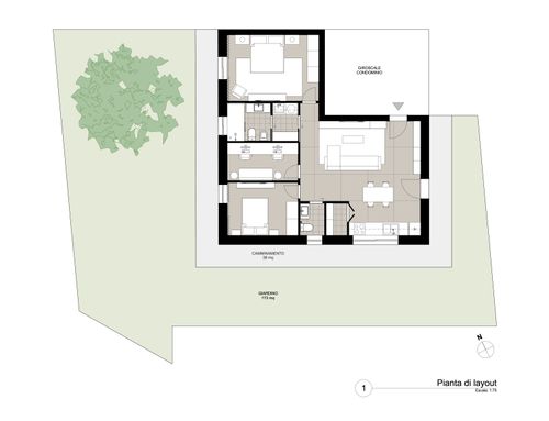
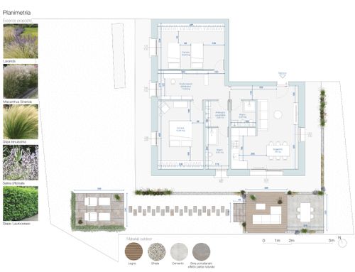
Possibly some ideas for the garden.
SPA:
Hola a todos, estoy a punto de comprar este apartamento de unos 85 metros cuadrados.
Me gustarÃa entender la mejor distribución de las habitaciones, teniendo en cuenta que las ventanas y la puerta de entrada no se pueden mover.
Me gustarÃa obtener:
- una superficie habitable (salón-cocina) lo más amplia posible, mÃnimo 30 m2
- un dormitorio doble de 13/14 m2
- una habitación individual de 9/11 m2
- un estudio/tercera habitación de 8/9 m2
- un baño principal de 5/6 m2
- un lavadero/baño secundario de 4/5 m2
Si es posible un pequeño trastero pero no es imprescindible
ITA:
Salve a tutti, sto per acquistare questo appartamento di circa 85 mq.
Vorrei capire la migliore disposizione dei locali, tenendo conto che i serramenti e la porta di ingresso non si possono spostare.
Vorrei ricavare:
- una zona giorno (soggiorno-cucina) più grande possibile, comunque minimo 30 mq
- una stanza matrimoniale da 13/14 mq
- una stanza singola da 9/11 mq
- uno studio/terza stanza da 8/9 mq
- un bagno principale da 5/6 mq
- una lavanderia/bagno secondario da 4/5 mq
se possibile un piccolo ripostiglio ma non è essenziale.
Non sarebbe male avere anche qualche spunto per arredo giardino.
Resources