
Cagliari, Metropolitan City of Cagliari, Italy
Residential - Apartment
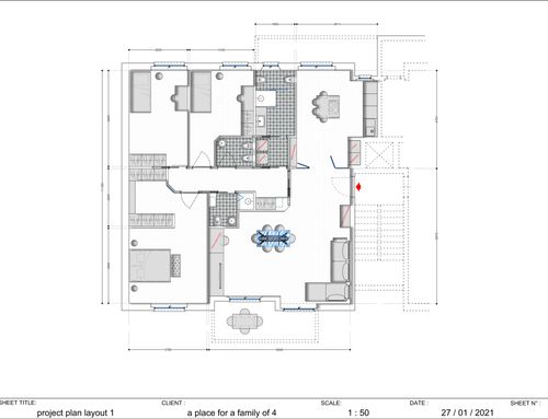
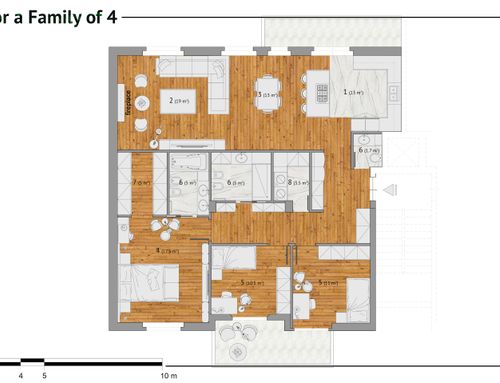
Briefing
PLEASE NOTE: A REVISED VERSION OF THE .DWG FILE HAS BEEN UPLOADED ON JAN 25TH . NOW THE COLUMN IS NO LONGER IN THE MIDDLE OF THE ENTRY DOOR. APOLOGIES FOR THE PREVIOUS MISTAKE.
*** PINTEREST BOARD OF IDEAS: https://pin.it/6BcQkXn ***
ITALIAN:
Contesto:
Famiglia di 2 adulti, 1 bambina e 1 bambino. Attualmente viviamo nell'appartamento che era stato comprato per lavorare su Airbnb ma poi e' diventato la nostra abitazione principale. L'appartamento e' al 4 piano, ha il balcone esposto a Sud e gode di un ottimo irraggiamento
L'appartamento e' attualmente costituito da
1 ingresso
1 ampio salone
1 cucina abitabile
3 camere da letto (una attualmente riconvertita a home office)
1 bagno interno (wc, bidet, lavabo, doccia) con finestra che si affaccia sul balcone chiuso
1 ripostiglio (alla fine del corridoio)
1 bagno/locale lavanderia esterno (wc, lavatrice/asciugatrice, lavabo, doccia) al quale si accede passando dal balcone chiuso attraverso la porta finestra della cucina)
1 balcone aperto
1 balcone chiuso con struttura di alluminio e vetro (dal quale si accede attraverso la porta finestra della cucina). Nel balcone sono alloggiati lo scaldabagno e la pompa di calore (vedi foto)
Necessità:
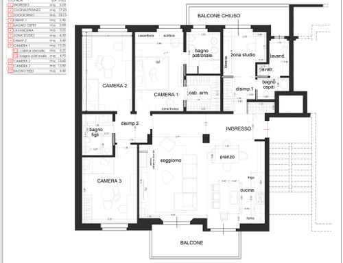
1 camera matrimoniale con cabina armadio
2 camere per i bambini
2 bagni completi con doccia e bidet ,eventualmente un terzo con solo lavabo e wc per gli ospiti. I bagni possono anche essere ciechi ma se almeno il principale avesse finestra sarebbe preferibile.
cucina + soggiorno: questi due elementi vengono accorpati nel brief perché ci piacciono gli ambienti open space. Possibilmente vorremmo una separazione tra i due ambienti ma che non tolga profondità e luce. Il principio dovrebbe essere che se qualcuno sta cucinando, non debba essere isolato rispetto a chi è in soggiorno a chiacchierare o a giocare, nel caso dei bambini
1 ripostiglio/dispensa: un locale o armadio a muro che possa ospitare lavatrice/asciugatrice/dispensa
Parquet chiaro (vedi foto)
Nice to have:
All'ingresso in casa vorremmo avere un posto dove poter riporre le scarpe ed i giubbotti
Soggiorno/Cucina aperti, ci piacciono gli spazi aperti, le finestrature, le porte grandi
Camino tipo bioetanolo nel soggiorno.
1 studio, considerata la limitata disponibilità' di finestratura e spazio, può' anche essere ricavato nel soggiorno. Se si trova in ogni caso modo di inserire una workstation (larghezza 170cm) va bene.
ENGLISH
Context:
A family of 2 adults, 1 young girl, and a boy. The apartment has been bought as Airbnb and later became our main residency. 4th floor, the living room is South facing.
Current setup:
1 entrance
1 quite large living room
1 kitchen
3 bedrooms (one is currently used as a home office)
1 bathroom (WC, bidet, sink, shower) with a window that sides on the closed balcony
1 closed (at the end of the corridor)
1 bathroom /washing machine/dry machine area. External (wc, drying machine/washing machine, sink, shower). Access is from the closed balcony through the kitchen)
1 balcony
1 closed balcony (closed balcony made with a frame of Aluminium and glass. You access it through the kitchen sliding door. At the moment on the balcony, we have the water heater and the air conditioning machine (see pics)
Needed:
1 master bedroom with walk-in closet
2 kid’s bedrooms
2 full bathrooms (wc, sink, bidet, shower) and possibly a 3rd with only sink and toilette for the guests. Bathrooms can also be without windows, even though if at least one would have a window, would be nice to have.
Kitchen + living room: those goest together in the brief as we like open spaces. Possibly we would like to have a sort of separation between the two but in a way that this separation won’t take out light and depth. The guiding principle should be that is someone is cooking should not be isolated from the ones that are in the living room. For instance, if the kids are playing or if we are having guests for dinner.
1 closed: un place or a build-in piece of furniture that could accommodate the washing machine / dry machine and some spare groceries
Wooden floor (see Pinterest)
Nice to have:
At the entrance, we would like to have a solution as a coat hanging and place the shoes.
Open kitchen/living room. We like open spaces, large windows, and large doors
Bioethanol fireplace
SPANISH:
Contexto:
Familia de 2 adultos, 1 niña y 1 niño. Actualmente vivimos en el apartamento que se compró para trabajar en Airbnb, pero luego se convirtió en nuestro hogar principal. El apartamento está en el 4to piso, tiene un balcón orientado al sur y disfruta de una excelente radiación.
El apartamento actualmente consta de
1 entrada
1 gran salón
1 cocina comedor
3 dormitorios (uno actualmente convertido en oficina en casa)
1 baño interno (inodoro, bidet, lavabo, ducha) con ventana que da al balcón cerrado
1 trastero (al final del pasillo)
1 cuarto de baño / lavadero externo (inodoro, lavadora / secadora, lavabo, ducha) al que se accede a través del balcón cerrado a través de la puerta de la cocina)
1 balcón abierto
1 balcón cerrado con estructura de aluminio y vidrio (al que se accede por la puerta francesa de la cocina). El calentador de agua y la bomba de calor se encuentran en el balcón (ver foto)
Necesitamos:
1 dormitorio doble con armario
2 habitaciones para niños
2 baños completos con ducha y bidet, posiblemente un tercero con lavabo e inodoro solo para invitados. Los baños también pueden ser ciegos pero si al menos el principal tuviera ventana sería preferible.
Cocina + salón: estos dos elementos se juntan en el brief porque nos gustan los ambientes diáfanos. Posiblemente nos gustaría una separación entre los dos ambientes pero eso no quita profundidad y luz. El principio debe ser que si alguien está cocinando, no debe aislarse de los que están en la sala de estar charlando o jugando, en el caso de los niños.
1 lavadero / despensa: una habitación o armario empotrado que puede acomodar lavadora / secadora / despensa
Parquet claro (ver foto)
Agradable tener:
A la entrada de la casa nos gustaría tener un lugar donde guardar zapatos y chaquetas
Sala de estar / cocina abierta, nos gustan los espacios abiertos, las ventanas, las puertas grandes
Chimenea de bioetanol en el salón.
1 estudio, dada la limitada disponibilidad de ventanas y espacio, también se puede obtener en la sala de estar. Si encuentra en cualquier caso una forma de insertar una estación de trabajo (170 cm de ancho), está bien.
PINTEREST BOARD OF IDEAS: https://pin.it/6BcQkXn