
Rome, Metropolitan City of Rome, Italy
Residential - Apartment
Briefing
ENG
Dear designers,
I want to furnish three two-room apartments with bathroom and walk-in closet with a modern and functional style. They are three independent two-room apartments with access from a common entrance, completed by a little closet that I will keep for common usage (for istance for cleaning materials).
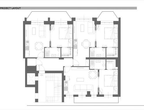
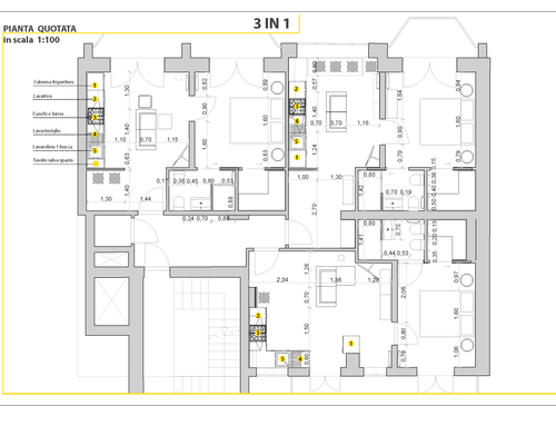
I don't want to change the disposition of spaces, given that I've already designed it with a friend of mine. So the attached map is the final one.
I only want to find nice furnishing and illumination solutions, including kitchens and floors.
Consider that the two mini-apartments on the right have the windows looking out on a very nice view on the trees and the river Tevere with much light coming during all day (exposure on south). The third apt on the left is instead looking on an internal courtyard, with less light coming in during the day.
Each mini-apartment is intended to be rented to singles (young professionals, students) or at most to a young couple without children, for annual renting periods.
The flooring of all three apartments should be in porcelain stoneware, common to the entire apartment and bathrooms.
I would love a scandinavian functional chic style, with light colours and would also love to have some practical solutions for every day lifetime and a plasterboard library. Attached you'll find two existing lamps I would like to use.
It is not a problem to furnish all of the three with the same style and even same furnishings if this can save some money. Also, I would prefer linear kitchens in order to save costs.
DWG file is now updated with the right doors.
Maximum budget: € 20,000 in total for coverings, bathroom fixtures and furnishings (including kitchens).
Thank you, good contest!
___________________________________________________________________________________
SPA
Estimados diseñadores,
Quiero amueblar tres apartamentos de dos habitaciones con baño y vestidor con un estilo moderno y funcional. Son tres apartamentos independientes de dos habitaciones con acceso desde una entrada común, completados por un pequeño armario que mantendré para uso común (por necesidad de materiales de limpieza).
No quiero cambiar la disposición de los espacios, dado que ya lo diseñé con un amigo mío. Entonces el mapa adjunto es el final.
Solo quiero encontrar buenas soluciones de mobiliario e iluminación, incluidas cocinas y pisos.
Tener en cuenta que los dos mini apartamentos a la derecha tienen las ventanas que dan a una vista muy bonita de los árboles y el río Tevere con mucha luz durante todo el día (exposición en el sur). El tercer apartamento a la izquierda está mirando hacia un patio interno, con menos luz entrando durante el día.
Cada mini-apartamento está destinado a ser alquilado a solteros (jóvenes profesionales, estudiantes) o como máximo a una pareja joven sin hijos, por períodos de alquiler anual.
Los pisos de los tres apartamentos deben ser de gres porcelánico, comunes a todos los apartamentos y baños.
Me encantaría un estilo elegante funcional escandinavo, con colores claros y también me encantaría tener algunas soluciones prácticas para la vida diaria y una biblioteca de placas de yeso. Adjunto encontrará dos lámparas existentes que me gustaría usar.
No es un problema amueblar a los tres con el mismo estilo e incluso el mismo mobiliario si esto puede ahorrar algo de dinero. Además, preferiría cocinas lineales para ahorrar costos.
El archivo DWG está actualizado con las puertas correctas.
Presupuesto máximo: € 20,000 en total para revestimientos, accesorios de baño y muebles (incluidas cocinas).
Gracias, buen concurso!
___________________________________________________________________________________
ITA
Cari designer,
Voglio arredare tre appartamenti bilocali con bagno e cabina armadio con uno stile moderno e funzionale. Sono tre appartamenti bilocali indipendenti con accesso da un ingresso comune, completati da un piccolo ripostiglio che terrò per uso comune (ad esempio per i materiali di pulizia).
Non voglio cambiare la disposizione degli spazi, dato che l'ho già progettato con un mio amico. Quindi la mappa allegata è quella finale.
Voglio solo trovare belle soluzioni di arredamento e illuminazione, tra cui cucine e pavimenti.
Considerate che i due mini-appartamenti sulla destra hanno le finestre che si affacciano su una vista molto bella sugli alberi e sul fiume Tevere con molta luce che arriva durante tutto il giorno (esposizione a sud). Il terzo appartamento a sinistra affaccia invece su un cortile interno, con meno luce che entra durante il giorno.
Ogni mini-appartamento è destinato ad essere affittato a single (giovani professionisti, studenti) o al massimo a una giovane coppia senza figli, per periodi di affitto annuali.
La pavimentazione di tutti e tre gli appartamenti dovrebbe essere in gres porcellanato, comune a tutto l'appartamento e ai bagni.
Mi piacerebbe uno stile scandinavo funzionale chic, con colori chiari e mi piacerebbe anche avere alcune soluzioni pratiche per la vita di tutti i giorni e una biblioteca di cartongesso. In allegato troverete due lampade esistenti che vorrei utilizzare.
Non è un problema arredare tutti e tre con lo stesso stile e persino gli stessi arredi se questo può far risparmiare un po 'di denaro. Inoltre, preferirei cucine lineari per risparmiare sui costi.
Il file DWG è ora aggiornato con le porte giuste.
Budget massimo: € 20.000 in totale per rivestimenti, sanitari e arredi (comprese le cucine).
Grazie, buon concorso!